880 W 1st Street #709

Los Angeles, CA 90012

$ 515,000

Price

2

Beds

2

Baths

1,232 Sq. Ft.

$418 / Sq. Ft.

Zillow Price Estimate - $600,361

847 Days On Market

Favorite

Share

Promenade West Building

Have You Been Pre-Qualified? Start Now

Listing provided by agent Bill Cooper BRE# 01309009 at Coldwell Banker Exclusive.

Last Updated: 847 days ago

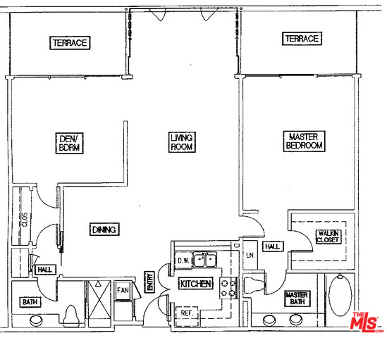
2+2+2+2 Classic end unit with only one shared wall at the luxurious Promenade West features 2 separate bedroom on either side of the home, 2 baths, 2 private terraces and 2 parking spaces. Promenade West is one of LA's finest full-service buildings. The building has 24-hour concierge and security, resort-like amenities including a pool, spa, gym, sauna, conference room with kitchen, and meeting room. The residents here enjoy lush lawns, gardens and beautiful landscaping with a waterfall and a private dog park. There is onsite laundry and guest parking. Just steps away from the Disney Concert Hall, Ahmanson Theatre, Mark Taper Forum, Dorothy Chandler Pavilion, The Broad Museum, Grand Park and many casual and fine dining establishments.

Show More
Property Type Condominium
Lot Size 123,904 sq. ft.
Year Built 1982
MLS # 20567582
Listing Type Closed
Heating Central
Cooling Central Air
Pool Association
Laundry Community, Individual Room
Parking Assigned, Community Structure, Controlled Entrance, Covered
Gated Community Yes

Payment Calculator

40% Complete (success)
80% Complete (danger)
20% Complete
80% Complete (danger)
60% Complete (warning)
Principal and Interest
Property Taxes
Homeowners' Insurance
HOA Dues
Mortgage Insurance
Image Calculator Icon Customize Calculations | Compare Mortgage Rates

Property Details for: 880 W 1st Street #709

Interior Features

Bathroom Information
  • 2 full baths
Additional Rooms
  • Two Masters
Laundry Information
  • Community
  • Individual Room
Heating & Cooling
  • Central Air
  • Central

Parking / Garage, Multi-Unit Information, Location Details

Parking Information
  • Assigned
  • Community Structure
  • Controlled Entrance
  • Covered
Community Features
  • Units in Complex (Total) 135

Exterior Features

Pool & Spa Information
  • Association
Building Information
  • Total Floors: 8

Property / Lot Details

Property Features
  • City Lights
Lot Information
  • Lot Size (Sq. Ft) 123,904
Property Information
  • Tax Parcel Number: 5151016134

Nearby Businesses

  • Grocery Stores
  • Drug Stores
  • Coffee Shops
  • Restaurants
  • Health & Medical
  • Fitness & Activity
  • Arts & Entertainment
  • Nightlife & Bars
    Browse all businesses in Downtown Los Angeles, CA, 90012

    Tour This Condo

    SATURDAY

    20

    DEC

    SUNDAY

    21

    DEC

    MONDAY

    22

    DEC

    TUESDAY

    23

    DEC

    WEDNESDAY

    24

    DEC

    THURSDAY

    25

    DEC

    FRIDAY

    26

    DEC

    Schedule A Tour
    Ryan Case, Licensed Realtor & Team Lead

    Ryan Case

    Licensed Realtor & Team Lead

    213-449-4909 Contact Ryan Case
    Listing provided by agent Bill Cooper BRE# 01309009 at Coldwell Banker Exclusive.

    Last Updated: 847 days ago